건축의 모든 것을 책임지는 파트너, 벽산아이엔씨가 만들어가겠습니다.
PANELTEK 테라코타는 중국의 풍부한 점토 자원과 스페인의 첨단 기술을 바탕으로 탄생하였습니다. 도시 미관 향상과 함께 관광 자원으로서의 가치를
증대시키는 건축의 주요 자재로 자리잡았습니다. 미려한 디자인과 다양한 색상을 제공합니다.
중공형 디자인은 건물 구조 시스템의 부하를
줄이고 단열, 보온, 방음 및 소음 감소 기능이
우수하며 에너지 절약에 탁월합니다.

순수 점토의 1,200℃ 소성 제작으로 최고의
불연성을 지니며, 내진 성적서를 보유한
안전 최적화 제품입니다.

세계 최고의 압출/사출 기술은 제품의 구성을
더 균일하고 치밀하게 형성하며 생산 공정의
친환경성과 재활용 효율을 증대시킵니다.

제품 색상 선택의 폭이 넓으며 다양한 형상과 입체
효과, 탁월한 예술적 분위기로 각종 디자인 수요를
충족합니다.

유럽 기준 EU DIT 및 CE 인증 테스트를
통과하였으며 견고한 품질을 바탕으로 11kPa
이상의 강풍도 견딜 수 있는 구조입니다.

일반 테라코타패널 대비 낮은 흡수율을 지니며
강도, 안전성, 내마모성, 내진성, 내오염성 등에서
우수한 성능을 보입니다.

고품질 천연 원료로 고온에서 소성됩니다.
내부와 외부 모두 변색되지 않으며
생산품 별 색상차이가 적습니다.

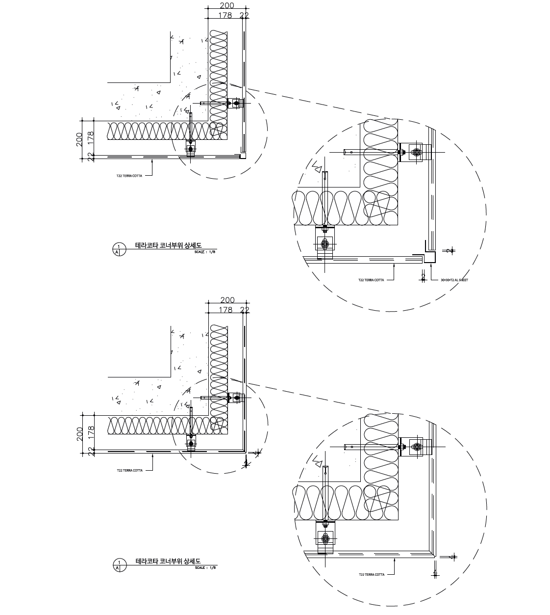
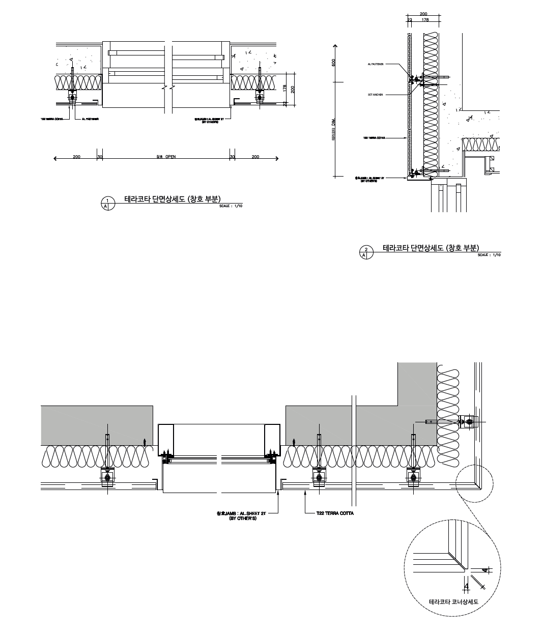
오픈 조인트 시공으로 설치가 빠르고 편리하며,
유지관리가 용이합니다.





| 항목 | 단위 | 세부기준 |
|---|---|---|
| 수분흡수율 / Water avsorption | 3% < E < 6% (Unglazed Tiles, 유약타일제외) | ISO 10545-3 / EN99 / KS L 1001 |
| 꺽임강도 / Fracture Strength | 100N/cm 이상 | KS L 1001 |
| 파괴강도 / Breaking Strength | 2.5kn 초과 | ISO 10545-4 |
| 휨파괴하중 / Bending Breaking Load | 2,500N 초과 | KS F 3510 |
| 내마모성 / Abrasion resistance | 393㎟ 미만(Unglazed Tiles) | ISO 10545-6 / EN154 |
| 0.1g 이하 | KS L 1001 | |
| 열충격저항 / Resistance to thermal shock | Resistant / 이상없음 | ISO 10545-9 / EN104 |
| 수분팽창률 / Moisture expansion | 0.06% 이하 | ISO 10545-10 |
| 내동해성 / Frost resistance | Resistant | ISO 10545-12 / EN202 / KS L 1001 |
| 내오염성 / Stain resistance | Resistant | ISO 10545-14 / EN122 |
| 내산성 | 이상없음 | KS L 1001 / ISO 10545-13 |
| 내알카리성 | 이상없음 | KS L 1001 / ISO 10545-13 |



